ADDRESS
369 S MAIN STREET
PROVIDENCE, RI 02903
Due to the health concerns created by Coronavirus we are offering personal 1-1 online video walkthough tours where possible.




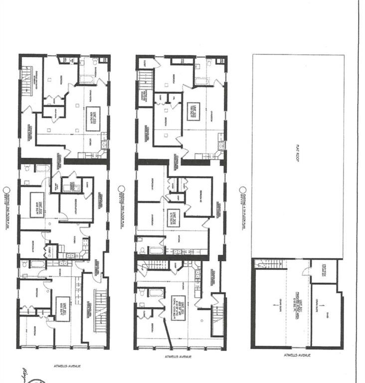
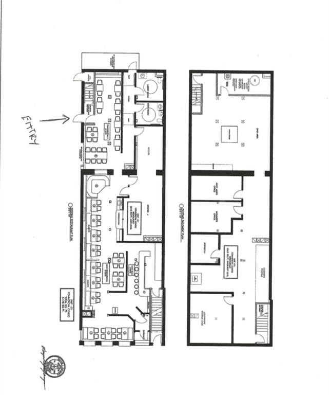
Phenomenal opportunity in the heart of Historic Federal Hill, Providence! Package deal - This mixed-use building is being sold in combination with adjacent vacant lots, 172 Spruce & 4 McCoy (Corner lots - Atwells & Spruce), to provide the perfect opportunity for development. All three parcels are zoned C2. 365 Atwells Ave provides a solid, well-maintained, brick building, currently includes 6 residential units, and one long-standing, award-winning Italian Restaurant. Many long-term tenants with excellent rental history are currently priced well below market value. This building has been well-maintained with several recent upgrades, including brand new roof, new vinyl siding, and exterior carpentry/paint improvements. Gas and electric are all separately metered (tenants pay). Each unit has their own unique features, including one 3rd floor unit that expands into a 4th floor loft space. Each unit provides central AC/heat. Great parking. Highly sought-after location, walking distance to downtown and centrally located to shopping, entertainment, and Historic Federal Hill charm. Easy access to train station, public transportation, and highways. 5-10 minutes to area hospitals (RI Hospital, Hasbro, Women & Infants, Roger Williams, VA Med Center), universities (JWU, PC, RIC, Brown, RISD), and state offices. Quick commute to Boston. Invest in Providence's booming housing market. Lead certificates are current. Restaurant has net lease, inquire for detailed expense info.
| 4 weeks ago | Status changed to Active | |
| 4 weeks ago | Listing updated with changes from the MLS® | |
| 4 weeks ago | Listing first seen on site |
Did you know? You can invite friends and family to your search. They can join your search, rate and discuss listings with you.